Site Description
FEATURES: Advanced Building Envelope, DADU or ADU, Design Innovation, Electric Vehicle Charging, Energy Efficient, Energy Star Appliances, New Construction
Please come visit us on the tour so that you can experience the “feel” of the place for yourself. The proportions and layout are “just right”. This lovely new home incorporates multiple facets of effective use of land and space with high-performance construction all the while pay attention to a tight budget.
Several years ago a very nice young couple and their son visited a project S.A.G.E. Designs NW and LastingNest featured on the NWEBG Green Home Tour and wanted one “kinda like that one”. Sage started design not too long afterward and we are happy to report they are now moved in! Technically this is a Carriage House.
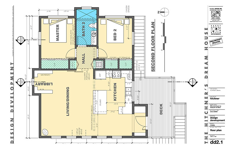
This structure features a large 1000 sq. ft. garage on the bottom floor with three large doors – which would allow a car to be driven through to the carport beyond – and a two bedroom one bath home on the top floor.
The main part of the home features spaces that feel open and comfortable, utilizing Milgard Ultra windows from Seattle’s own “Windows Doors and More” placed thoughtfully to bring in light and cross ventilation while also conveying the feeling of living in a house in the trees. We chose Milgard windows because they were the best combination of energy efficiency, ease of care, and local manufacturing. The wall and roof systems are designed to be efficient, well insulated and airsealed, but also not excessively expensive or difficult to build.
The house is heated and cooled with a Mitshubishi heat pump, and also uses a Lunos ERV system for active ventilation. Green Homes Solutions supplied the prefinished Honey Oak flooring, which pairs beautifully with the clear finished Fir window and door trim. In the kitchen, high-efficiency appliances and an amazing Richlite island countertop complete the picture.








